M

ATELIER GAAM

 

Atelier d’architecture
Gabriel & Mathieu
bonjour@atelier-gaam.fr

 

  /  Chevert
GAAM_projet-Chevert-1
GAAM_projet-Chevert-2
GAAM_projet-Chevert-3
GAAM_projet-Chevert-4
GAAM_projet-Chevert-5
GAAM_projet-Chevert-6
GAAM_projet-Chevert-7

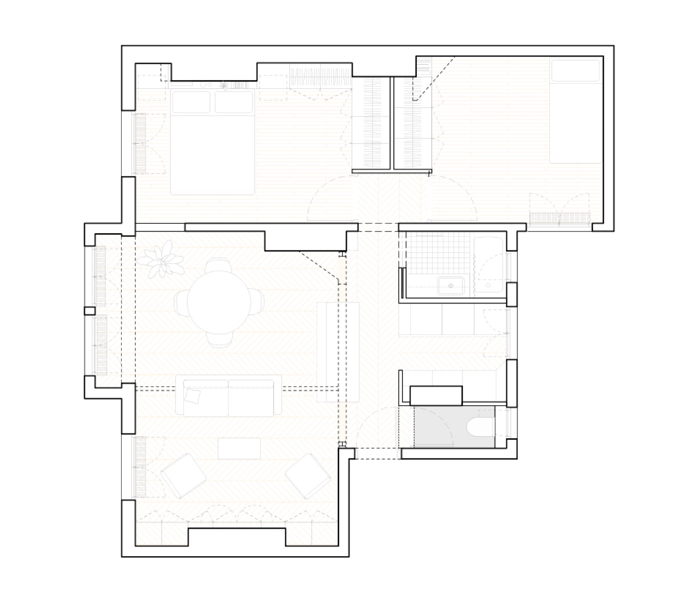
Chevert

Rénovation d’un appartement
 
Surface : 60m²
Usage : logement
Mission : complète
Client : privé
Année : 2021
Ville : Paris 16e