M

ATELIER GAAM

 

Atelier d’architecture
Gabriel & Mathieu
bonjour@atelier-gaam.fr

 

  /  Midi
GAAM_projet-Midi-1
GAAM_projet-Midi-2
GAAM_projet-Midi-3
GAAM_projet-Midi-4
GAAM_projet-Midi-5

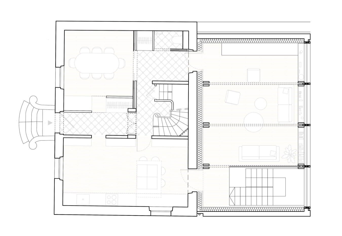
Midi

Rénovation et extension d’une maison
 
Surface : 180m²
Usage : logement
Mission : complète
Client : privé
Année : 2022-2023
Ville : Nanterre
 
/ EN COURS /