M

ATELIER GAAM

 

Atelier d’architecture
Gabriel & Mathieu
bonjour@atelier-gaam.fr

 

  /  Place de l’Église
GAAM_projet-Place-de-lEglise-1
GAAM_projet-Place-de-lEglise-2
GAAM_projet-Place-de-lEglise-3
GAAM_projet-Place-de-lEglise-4
GAAM_projet-Place-de-lEglise-5
GAAM_projet-Place-de-lEglise-6
GAAM_projet-Place-de-lEglise-7
GAAM_projet-Place-de-lEglise-8
GAAM_projet-Place-de-lEglise-9
GAAM_projet-Place-de-lEglise-10
GAAM_projet-Place-de-lEglise-11

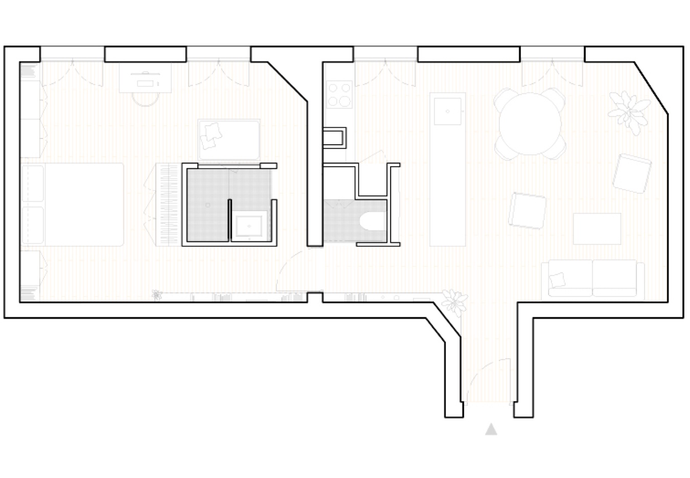
Place de l’Église

Rénovation d’un appartement
 
Surface : 60m²
Usage : logement
Mission : complète
Client : privé
Année : 2019
Ville : Pantin
Photos : Robin Frolet