M

ATELIER GAAM

 

Atelier d’architecture
Gabriel & Mathieu
bonjour@atelier-gaam.fr

 

  /  Ramus
GAAM_projet-Ramus-1-
GAAM_projet-Ramus-2-
GAAM_projet-Ramus-3-
GAAM_projet-Ramus-4-
GAAM_projet-Ramus-5-
GAAM_projet-Ramus-6-
GAAM_projet-Ramus-7-
GAAM_projet-Ramus-8-
GAAM_projet-Ramus-7

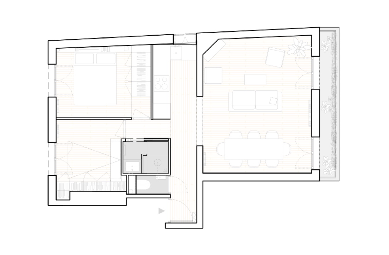
Ramus

Rénovation d’un appartement
 
Surface : 50m²
Usage : logement
Mission : complète
Client : privé
Année : 2022
Ville : Paris 20e